- Zdvih (m): 3 m
- Nosnost (kg): 500 kg
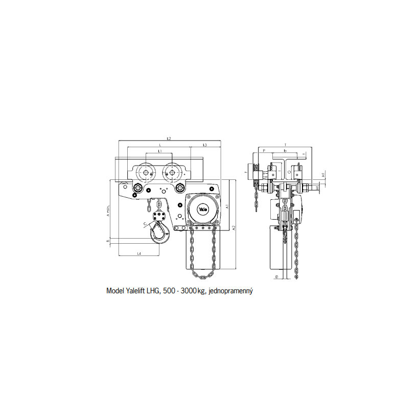
Yale Ruční řetězový kladkostroj Yalelift LHG - vozík A
Ruční řetězový kladkostroj model Yalelift LHG s integrovaným pojezdem nízké stavební výšky je zlepšeným modelem Yalelift IT. Zobrazit více
Fotografie jsou ilustrační
Ruční řetězový kladkostroj Yalelift LHG - vozík A
Ruční řetězový kladkostroj Yalelift LHG - vozík A
Nosnost: 2000 kg
Ruční řetězový kladkostroj model Yalelift LHG s integrovaným pojezdem nízké stavební výšky je zlepšeným modelem Yalelift IT. Kdekoli je potřeba ještě nižší stavební výšky, tak model Yalelift LH je ideální volbou. Speciálně vyvinuté přesměrování a vedení řetězu umožňuje břemenový hák se spodní kladnicí táhnout z boku vedle kladkostroje vzhůru pod nosník. Osvědčený a plynulý nastavovací systém umožňuje rychlou a snadnou montáž pojezdu. Kolečka jsou dimenzována pro maximální sklon příruby nosníku 14%, optimální vlastnosti pojezdu jsou zaručeny kapsovými kuličkovými ložisky s trvalým mazáním. Kladkostroj má výborné valivé vlastnosti díky ocelovým kolům nasazeným na promazaná a uzavřená kuličková ložiska.
Vlastnosti:
- Všechny modely řady LH do nosnosti 3000 kg jsou vybaveny jedním pramenem řetězu.
- Modely od nosnosti 5000 kg mají dvoupramenný řetěz.
- Pojezdy do nosnosti 5000 kg nabízíme pro dvě šířky příruby nosníku, typ A pro šířku příruby do 180 mm a typ B pro šířku do 300 mm.
- Verze Yalelift IT s nízkou stavební výškou je nastavitelná, aby vyhovovala různým profilům nosníku (např. INP, IPE, IPB).
- Součástí dodávky je zařízení proti pádu a překlopení.
Tato zdvihací zařízení nejsou určena pro přepravu osob!
Technické údaje:
- Nosnost: 2000 kg
- Zdvih: 3 m
- Vozík: 82 - 180 mm
- Hmotnost při standardním zdvihu: 61 kg
- Počet pramenů řetězu: 1
Technické parametry
- Zdvih (m)3 m
- Nosnost (kg)2000 kg
- Hmotnost při strandardním zdvihu 3 m61 kg
- Počet pramenů řetězu1
- VozíkTyp A - 82-180 mm
- Variant3m,2000kg


